
更新时间:2025-01-29 17:58:59 1635
【简介】上海松江天安金谷科技园是天安中国 (港交所:00028) 旗下经上海市批准设立的科技创新平台园区
【地址】上海市松江区鼎源路505弄、文松路223弄
【面积】一期占地280亩 约34万方 其中140亩可专属定制厂房
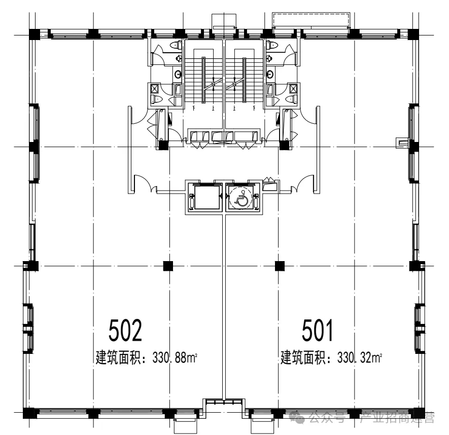
【户型】现房 单层 半层330 独立产权 /整层660平 整栋 3300平 200平起可独立办理产证
【售价】12000-13000
【租金】1-1.1
【承重】标准层200kg/㎡
【层高】底楼5.4米 标准层4米
【配电】80 w/㎡
【配套】餐饮、超市(已开业)、人才公寓(已运营入住)
【交通】距G1503、G60高速入口2km,高铁松江南站10km,公交站500米,有轨电车T2 鼎源路站700米(规划中)G60人才专线(已开通)可免费直达松江大学城地铁站
【政策支持】大张江政策、G60科创走廊政策、生物医药专项补贴(最高2年租金补贴)












发表评论 已有 10 评论